Renova Campus Courtyard

CULTIVATING WHOLE-HEALTH AND COMMUNITY RESILIENCE IN THE BRONX
Melrose, The Bronx

Nestled between two new high-rise affordable housing towers and an existing residential building in the Bronx, the Renova Campus Wellness Courtyard was conceived as a restorative, multi-functional heart for a diverse community. The project’s vision required balancing the complex needs of supportive housing with stringent site constraints, ultimately transforming a dense urban plot into an ecologically vibrant and highly accessible neighborhood commons.

  • Status: IN PROGRESS

    Completion Date: 2028

    Location: Bronx, New York

    Size: 0.64 Acres (Inner Courtyard) / 2.8 Acres (Total Site)

    Collaborators:

    • Development Joint Venture: Gilbane Development Company, Tredway, Institute for Community Living (ICL), ELH Mgmt. LLC

    • Architect: Aufgang Architects

    • Landscape Architect: Bayview Landscape Architecture

    • Builder: Gilbane Building Company

    • Property Manager: ELH Management

    • Tenant Behavioral Health Support: Institute for Community Living (ICL) Inc.

    • Consulting Engineer: De Simone

    • Consulting Engineer: Mueser Rutledge Consulting Engineers (MRCE) PLLC

    • Mechanical Engineer: EP Engineering

    • Civil Engineer: Phillip Habib & Associates Engineering & Planning

    • Sustainability and Accessibility Consultant: Steven Winter & Associates

    • Permit Expediter: JM Zoning

    • Financing Partners: NYC HPD, NYC HDC, NYSERDA

WEAVING A SOCIAL FABRIC

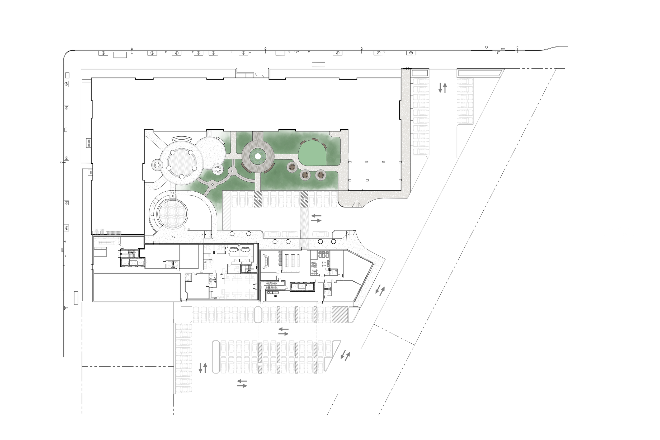
The campus serves a multi-generational population, including formerly homeless individuals and those requiring physical or behavioral health support, demanding a space that caters to highly diverse needs. Collaborating closely with the Institute for Community Living (ICL), we integrated trauma-informed, therapeutic design principles. A spacious central plaza connects seamlessly to the indoor community center, doubling as an outdoor classroom with amphitheater-style seating for large gatherings, while dedicated picnic offshoots offer intimate moments of quiet retreat to support mental well-being and community connection.

MANAGING WATER RESPONSIBLY

The site's varying elevations presented major hurdles for both universal accessibility and environmental performance within a dense, paved urban environment. Rather than relying on traditional gray infrastructure, we designed a landscape that works actively with the natural water cycle. The design incorporates a network of permeable paving and a central bio-infiltration rain garden that captures and filters stormwater onsite, reducing municipal runoff while enabling meticulously graded, ADA-compliant pathways for all mobility levels.

Viewed from the upper floors of the surrounding towers, the courtyard unfolds in soft, circular motifs and lush greenery, harmonizing with the architectural lines to provide a beautiful, welcoming oasis for the entire campus.

PLANTING DESIGN FOR THE FUTURE

Creating a resilient, low-maintenance green space that could withstand the urban heat island effect and fluctuating weather required a highly intentional horticultural strategy. We curated a robust plant palette where over half the species are native to the Northeastern Coastal Zone, including native Serviceberry trees, Joe Pye Weed, and Winterberry. This approach rebuilds healthy soil, supports local pollinators, and creates a soft, immersive canopy that ensures the long-term sustainability and health of the landscape while providing a vital daily connection with nature.

EXISTING CONDITIONS

PRIORITIZING THE PEDESTRIAN EXPERIENCE

Early in the site context and assessment phase, the team faced a significant constraint: local zoning regulations required on-site parking, which threatened to dominate the available open space with vehicular infrastructure. In response, we strategically consolidated the vehicular circulation and parking into a minimal footprint along the periphery. This critical decision liberated the core of the campus, allowing the landscape to function as a generous, walkable environment that fosters social interaction and prioritizes human well-being over automobile access.

Thinking of similar features for your new development?

Tell us about your vision.

Previous
Previous

Mitchel Houses

Next
Next

NYCHA Weeksville Campus Revitalization